
La plataforma más utilizada para las búsquedas oficializó los números del último año. La Inteligencia artificial aparece como una de las principales herramientas.

En un mundo de constantes cambios tecnológicos, los diseñadores e ingenieros buscan continuamente herramientas que les permitan crear proyectos de alta calidad, sin dejar de ser efectivos y rentables. Las últimas décadas han estado dominadas por programas de tipo "desktop", es decir, instalados en la computadora. Esto se debió a las limitaciones tecnológicas y a la velocidad del internet. Actualmente, este tipo de programas están siendo sistemáticamente reemplazados por aplicaciones tipo SAAS (software como servicio), que ofrecen mayor seguridad de datos, movilidad y precios accesibles.
Tecnología08 de julio de 2024
Al dibujar planos técnicos, vale la pena considerar si la inversión en un costoso software de escritorio, que requerirá la compra de actualizaciones en unos pocos años, tiene sentido hoy en día. Dicho software a menudo requiere varios gigabytes de espacio libre en el disco, y las copias de seguridad de los dibujos deben gestionarse de manera independiente. Es verdad que los fabricantes de sistemas CAD ofrecen copias de seguridad en la "nube", pero el costo anual de dicho servicio, a menudo, supera el precio del propio programa.
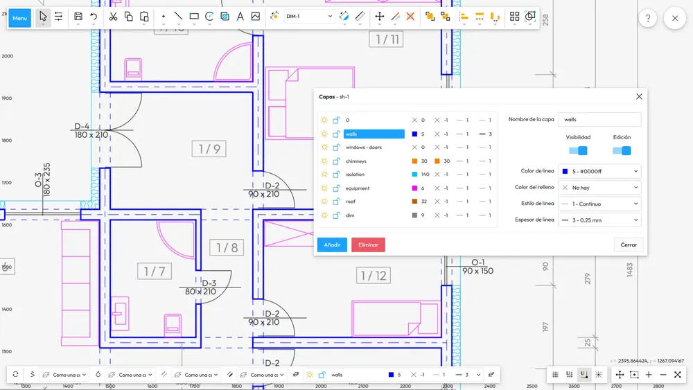
En este contexto, vale la pena conocer el programa TechCAD, que funciona en el navegador web y está disponible en la dirección https://techcad.com. El programa no requiere que el usuario realice instalaciones, actualizaciones manuales ni copias de seguridad de los dibujos técnicos. Los proyectos se pueden abrir desde cualquier lugar, es suficiente una computadora con sistema operativo Windows, Mac OS X o Linux y un navegador web. Además, es posible visualizar los proyectos desde un teléfono móvil.
¿Por qué vale la pena interesarse en el programa?
TechCAD es una herramienta de diseño de última generación que ofrece una amplia gama de funciones y capacidades similares a las de otros programas de CAD, pero con opciones que los programas de escritorio, debido a su naturaleza, no pueden ofrecer. A continuación, presentamos algunas razones clave por las cuales vale la pena considerar elegir el programa:
1. Precio accesible
Uno de los puntos fuertes de TechCAD es su precio competitivo. Si no estás diseñando complejos proyectos arquitectónicos o de infraestructuras en 3D, considera la posibilidad de utilizar un sencillo programa móvil de dibujo técnico.
2. Interfaz de usuario intuitiva
TechCAD, a diferencia de sus competidores, es mucho más sencillo de utilizar. Tiene una interfaz de usuario clara e intuitiva, que permite a los usuarios empezar a trabajar rápidamente sin necesidad de una formación prolongada.
3. Funciones y herramientas avanzadas
El programa ofrece una amplia gama de herramientas para el diseño en 2D. Los usuarios pueden utilizar funciones avanzadas de dibujo, edición y herramientas de anotación, lo que permite crear proyectos detallados y profesionales.
4. Exportación e importación de archivos DXF
Uno de los aspectos clave que los diseñadores tienen en cuenta es la compatibilidad con el formato de archivo DXF, ampliamente utilizado. TechCAD es totalmente compatible con este formato, lo que permite abrir, editar y guardar archivos DXF sin problemas. Como resultado, los usuarios pueden compartir fácilmente diseños con usuarios de otras herramientas CAD.
5. Movilidad y seguridad
El programa no requiere instalación. Ofrece la posibilidad de iniciar sesión desde cualquier lugar utilizando cualquier sistema operativo y dispositivo. No tienes que preocuparte por las copias de seguridad - el programa incluso las realiza cada 15 minutos. Los usuarios también tienen la opción de compartir o enviarse directamente copias de los dibujos.
6. Soporte técnico
El fabricante ofrece un buen servicio de asistencia técnica, esencial para los nuevos usuarios. En lugar de buscar ayuda en Internet, la recibes directamente de los desarrolladores del programa a través de un formulario disponible en el programa.
Resumen
TechCAD es un programa moderno, versátil y competitivo para la creación de dibujos técnicos bidimensionales, que representa una excelente alternativa a otras herramientas disponibles. Su precio accesible, interfaz intuitiva, gran cantidad de funciones y compatibilidad con el formato DXF lo convierten en una opción atractiva tanto para pequeñas como para grandes empresas. Gracias a sus funciones avanzadas en la nube, su automatización y su alta productividad, TechCAD puede aumentar significativamente la eficiencia de diseñadores e ingenieros.






La plataforma más utilizada para las búsquedas oficializó los números del último año. La Inteligencia artificial aparece como una de las principales herramientas.

La firma tecnológica implementará un sistema propio respaldado en dólares, desafiando directamente el predominio de las tarjetas de crédito tradicionales.

La nueva función de Google Translate permite escuchar traducciones instantáneas directamente en auriculares, replicando el tono y la entonación. El sistema ya está disponible en versión beta para Android en algunos países.

La compañía lanzará una herramienta llamada "Android Emergency Live Video", que permitirá a operadores del 911 solicitar transmisiones en vivo.

La versión beta ya se encuentra disponible en algunos países y seguirá expandiéndose en 2026.

La nueva actualización viene cargada de novedades como mensajes de llamadas perdidas, divertidos stickers para los estados, mejoras en la generación de imágenes con Meta AI.

La herramienta, que se encuentra en fase beta, estará disponible inicialmente para suscriptores Premium en Nueva Zelanda.

La ley obliga a las plataformas a bloquear a usuarios menores de 16 años y fija sanciones millonarias para quienes no cumplan. Marca un cambio de paradigma mundial.







Falleció hoy en San Carlos Centro a la edad de 85 años, la Señora Jorgelina Isabel Tenorio viuda de Jourdan.

El Club Atlético Argentino invita a toda la comunidad a disfrutar de una nueva edición de su tradicional Fiesta de la Cerveza, que se llevará a cabo el sábado 10 y domingo 11 de enero en el Complejo Polideportivo del club, ubicado en el Acceso Norte de San Carlos Centro.

El Gobierno de San Carlos Centro informa que, con motivo de la celebración del Año Nuevo, ESTE JUEVES 1° DE ENERO, NO HABRÁ RECOLECCIÓN DIFERENCIADA DE RESIDUOS.

El GOBIERNO DE SAN CARLOS CENTRO invita a la comunidad a recibir a los REYES MAGOS que recorrerán las calles y espacios públicos de la ciudad, el LUNES 5 DE ENERO a partir de las 18 hs.

La inestabilidad podría llegar hacia la tarde noche del 1 de enero. Mirá lo que dice el pronóstico extendido.

Falleció hoy Miércoles 31 de Diciembre en San Carlos Centro a la edad de 87 años, el Señor Donaldo Alfredo Imsand.

En la tarde noche de ayer un hombre de 75 años fue aprehendido en San Jerónimo Norte quien habría agredido y amenazado a su vecino con un arma de fuego.

Ayer por la tarde, el Señor Jefe de la Unidad Regional XI Director de Policía Lic. Rodrigo Sebastián Villalva acompañado del Jefe de Agrupación de Unidades de Orden Público Alfredo Wimmer, el Subjefe de Cuerpos Comisario Aníbal Colque y el Jefe de la Sexta Zona de Inspección con personal a cargo estuvieron presentes en el operativo preventivo en el marco de la manifestación en pedido de justicia por el fallecimiento de Lucas Bruno.

En la tarde de este miércoles 31 de diciembre del 2025 se registró un hallazgo perturbador que conmocionó a los vecinos de la costanera de Sauce Viejo. Una embarcación que flotaba a la deriva en el río Coronda escondía en su interior una escena sangrienta: los cuerpos de dos hombres acribillados y el cadáver de un animal vacuno.

Se produjo un accidente de tránsito fatal en Belgrano y Colón de la ciudad de San Carlos Centro cerca de la hora 6:15 de este jueves. “El Urbano”. Primero en noticias. Primero en visitas. Y en lugar de los hechos.



